What is a hazardous waste consignment note?

A hazardous waste consignment note (HWCN) is a document that details the transfer of hazardous waste from one person to another. The hazardous waste transfer note forms part of the waste duty of care. A note is needed for all movements of hazardous waste, including:
- collections from businesses by registered waste carriers
- movements from one premises to another within the same business
- movements from customer premises, where another business has produced waste
You must ensure every load of hazardous waste you receive or pass to others is covered by a HWCN. Asbestos waste from a domestic premise requires that the homeowner receives a HWCN.
Hazardous waste notes ensure that there is a clear audit trail from when the waste is produced until it is disposed of. You must keep copies of all your waste transfer notes (including HWCNs) for at least three years and must be able to produce them on demand to your environmental regulator or local council, or you could be fined. If the waste is not hazardous waste, you will need a waste transfer note instead.
If you need help completing your consignment note, or waste transfer note, check out Dsposal's Paperwork, an affordable software to help you complete your compliance paperwork correctly.
What does a HWCN look like?
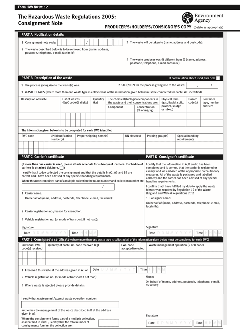
Hazardous Waste Consignment Notes do not have a standard look but to be valid the consignment note must include all the information fields and be as near as possible to the format in the example, provided by the Environment Agency, below:

The note contains 5 parts (A – E). Each part must be filled out in order, by the right person, at the right time. These parts are:
Part A) Notification Details

Part B) Description of the waste

Part C) Carrier’s certificate

Part D) Consignor’s certificate

Part E) Consignee’s certificate

How to fill in a HWCN
As stated above the Hazardous Waste Consignment Note needs to be filled out in order, by the right person at the right time. This is to ensure that there is a clear audit trail from when the waste is produced until it is disposed of.
Step 1: Producer or Holder completes parts A and B
The producer or holder of the waste must complete parts A and B on each copy of the note before the waste is removed. You will normally need 3 copies, although more may be needed in some circumstances. Give all copies to the carrier.
Part A) Notification Details
Action: Complete Part A The right person is: the waste producer or the waste holder The right time is: before the waste is collected Note: requires a hazardous waste consignment note code
Part B) Description of the waste
Action: Complete Part B The right person is: the waste producer or the waste holder The right time is: before the waste is collected
Step 2: Carrier checks parts A and B, and completes part C
The carrier must check parts A and B of the note, and complete part C after the producer or holder has completed parts A and B and before the waste is removed. Once you have signed part C you must hand all copies back to the consignor, producer or holder.
Part A) Notification Details
Action: Check Part A The right person is: the waste carrier The right time is: before the waste is removed
Part B) Description of the waste
Action: Check Part B The right person is: the waste carrier The right time is: before the waste is removed
Part C) Carrier’s certificate
Action: Complete Part C The right person is: the waste carrier The right time is: before the waste is removed
Step 3: consignor checks parts A, B and C and completes part D
The consignor, producer or holder of the waste must check part C and complete part D before the waste is removed. Once part D has been completed the hazardous waste can be removed. The consignor, producer or holder keeps 1 copy and gives 2 copies to the carrier.
Part C) Carrier’s certificate
Action: Check Part C The right person is: the waste producer or the waste holder The right time is: before the waste is removed
Part D) Consignor’s certificate
Action: Complete Part D The right person is: the waste producer or the waste holder The right time is: before the waste is removed
Step 4: the consignee receives the waste from the carrier
On arrival at the waste site the waste carrier gives the consignee 2 copies of the note. The consignee needs to check parts A, B, C and D as well and completing part E. The consignee keeps 1 copy and gives 1 copy to the carrier.
Part A) Notification Details
Action: Check Part A The right person is: the waste site The right time is: when the waste arrives
Part B) Description of the waste
Action: Check Part B The right person is: the waste site The right time is: when the waste arrives
Part C) Carrier’s certificate
Action: Check Part C The right person is: the waste site The right time is: when the waste arrives
Part D) Consignor’s certificate
Action: Check Part D The right person is: the waste site The right time is: when the waste arrives
Part E) Consignee’s certificate
Action: Complete Part E The right person is: the waste site The right time is: when the waste arrives